HOME
PROJECTS
Commercial | Offices
Residential Homes
Municipal Projects
Renovations
PLANS FOR SALE
ABOUT US
CONTACT
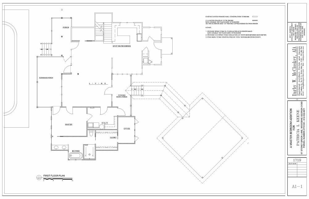
Keene Renovation
Keene Renovation
All content is protected by copyright. Duplicating or printing of content is strictly forbidden.
Button
Button
Button
Button
1700 Frederica Rd Suite 203 | Saint Simons Island, GA 31522
©
Copyright
| Darby McCloskey Architect
Privacy Policy
| Website Designed by
The Paramount Group.us, Inc.
Follow Us
Share by: